
前言
光伏、風力發電系統接入配電網,是新型電力系統的重要特征。但受分布式光伏發電系統出力波動性影響,當其輸出功率超出電網用戶負荷時,光伏發電系統功率會被輸入配電網,形成反向功率流 。當功率流達到一定限值,便會引起配電網電壓越限問題,顯著增加線損,并會對配電網電能輸出質量造成影響。加強分布式光伏與儲能系統協調控制,是控制光伏系統處理波動引起配網電壓越限問題的有效措施。基于此,本文對新型電力系統下的光儲協調控制方案展開分析,對保障電力系統運行穩定、提升系統能源利用效率具有重要意義。
光儲協調控制方案
在不包含光伏系統的傳統電力系統配電網絡拓撲中,電網有功功率為單向流動,即從線路首端流向末端,電壓幅值隨之降低。在新型電力系統網絡下,受到光伏系統出力波動性影響,當分布式光伏系統輸出功率小于用戶負載時,電網有功功率流向電網一致 ;當光伏系統輸出功率較大時,超出用戶負荷的功率會有接入點送入電網,導致有功功率由線路末端向線路首端反向流動,造成反向功率流現象。受反向功率流影響,配網末端電壓會隨之增大,引起電壓越限問題。
當前,多通過引入儲能裝置的方法,對光伏發電系統并網點電壓越限問題進行控制,從而實現對光伏并網有功功率的有效調節,提升配電網的光伏功率消納能力和利用率。
針對上述,安科瑞公司推出光儲協調控制策略方案:主要結合不同的場景,分為防逆流、新能源消納、需量控制、動態擴容以及后續配合虛擬電廠做的動態控制等。

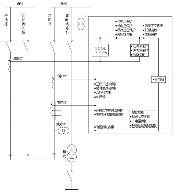
微電網智慧能源平臺
分布式光伏
針對光伏的控制,主要是以防逆流為主,即協調控制器ACCU-100結合防逆流保護裝置AM5SE-IS方案,通過監測公共連接點逆流情況,一旦檢測到逆流或即將出現逆流,就會通過通信接口發送信號給協調控制器,協調控制器通過監測市電總進線處的功率和實時的發電功率,經過系統的計算生成對應的逆變器調節指令,來實現光伏防逆流的柔性調節功能。同時防逆流保護裝置內設置逆功率或者低功率保護功能作為柔性調節失控下的逆流保障。這種方法既可以保證電力系統按照設計運行,保護電網的安全和穩定,又可以利用光伏發電。
如圖所示,虛框為用戶電網,該用戶電網通過公共連接點C與電網相連。在用戶電網內部,有兩個分布式光伏發電系統,分別通過A點和B點與用戶電網相連,A點和B點均為并網點,但不是公共連接點。在D點有分布式光伏發電系統直接與公共電網相連,D點是并網點,也是公共連接點。因此分布式光伏的防逆流應當監視公共連接點(C或者D點)處的上網功率。

公共連接點和光伏并網點示意圖
國標要求
根據《GB/T 50865-2013 光伏發電接入配電網設計規范》和《GB/T 29319-2012 光伏發電系統接入配電網技術規定》等國家標準中均明確提出防逆流要求:當光伏發電系統設計為不可逆并網方式,應配置逆向功率保護設備。當檢測到逆向電流超過額定輸出的5%時,光伏發電系統應在2s內自動降低出力或停止向電網線路送電。
方案組成
主要產品清單如下:

(1)ACCU-100微電網協調控制器

通過監測市電總進線處防逆流信號,將市電取電信號上傳至ACCU-100微電網協調控制器。該控制器會對逆流數據展開精確的邏輯計算,進而據此對逆變器的輸出功率進行調整,最終實現無逆流運行。
ACCU-100 與智慧能源管理云平臺緊密配合,構建高效系統架構。控制器精準調控分布式能源,并與云端平臺實時交互,響應云端策略配置,實現跨站點、跨區域海量數據接入與分析,為各站點提供精準管控與最佳控制方案,遠程監控運維功能進一步提升管理效率。

(2)防逆流保護裝置
為確保系統的可靠性,配置的防逆流保護裝置,在控制器出現故障或通訊中斷等異常情況下,能夠迅速切斷或者輪切并網柜斷路器,保障電網安全。防逆流保護裝置目前有2款,可以根據應用場景來選擇。
1)并網點與逆流檢測點距離較近(建議200m以內)
可選用AM5SE-IS防逆流保護裝置,具有:逆功率跳閘、逆功率恢復合閘;低功率跳閘、低功率恢復合閘。

2)并網點與逆流檢測點距離較遠(超過200m)
可選用AM5SE-PV系列主從機防逆流保護裝置。具有:主從機方案四段低功率/低功率恢復合閘;主從機方案逆功率/逆功率恢復合閘;主機防孤島保護、從機防孤島保護。

3)智慧能源管理平臺
借助 AcrelEMS 3.0智慧能源管理平臺,可對用戶微電網的光伏發電系統以及用電負荷展開實時監測。結合先進的光伏預測技術,該平臺能夠優化運行策略,實現源荷之間的有序互動。不僅可以靈活調節逆變器出力,有效避免逆流現象,還能充分滿足企業微電網在能效管理數字化、安全分析智能化等方面的需求,顯著提高微電網的運行效率和能源利用率。

 AcrelEMS 3.0平臺功能展示:

多站點綜合大屏

“源網荷儲"運行監控

“2.5D"全景展示

能碳報表

功率預測

經濟調度

協調控制策略

智能運維
方案接線
(1)單進線單并網點防逆流保護裝置接線示意圖如圖所示。

AM5SE-IS防逆流保護裝置接線示意圖
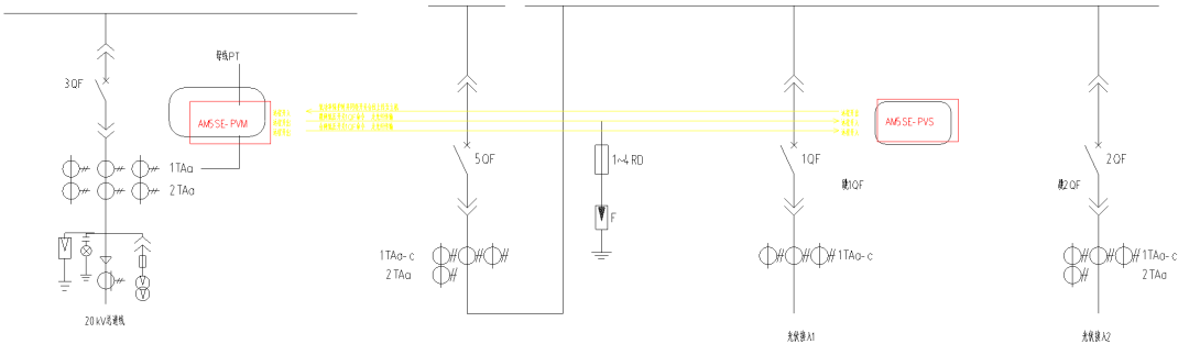
(2)單進線多并網點,且防逆流點與并網點距離超過200米的防逆流保護裝置接線示意圖如圖所示。
若一路市電進線下帶多個并網點,主機選用AM5SE-PVM、從機選用AM5SE-PVS(*最多支持1主5從),如圖所示。

AM5SE-PV主從機方案防逆流保護裝置接線示意圖
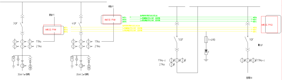
(3)多進線單/多并網點,且防逆流點與并網點距離超過200米的防逆流保護裝置接線示意圖如圖所示。
當市電進線為多路電源進線帶1或多個并網點,主機選用AM5SE-PVM、從機選用AM5SE-PVS2(1個主機*多支持5個從機、1個從機*多接受4個主機),如圖所示。

AM5SE-PV主從機方案防逆流保護裝置接線示意圖
方案組網
通過在市電進線處安裝防逆流裝置(針對多進線多并網點的,可以采用主從機防逆流裝置),實時監測光伏上網情況,將監測信號上傳給協調控制器。通過對逆流數據的邏輯計算對逆變器的輸出功率進行調整,實現無逆流情況。

協調控制器與保護裝置組網接線示意圖
案例分享
某高速源網荷儲項目案例
在雙碳目標、國家及河南省政策背景下,提出要落實全省新業倍增行動和綠色低碳轉型戰略,依托高速公路資產和土地資源集聚優勢搭建新能源發展平臺,統籌開展光伏、充換電儲能、能源智慧管理及相關配套服務等業務,為指導后續工作的有序開展。
沿途共設有中牟、鄭州北、澠池、漯河、許昌、靈寶、長葛、商丘、開封等多個服務區、收費站,實現每個站點的智慧管理以及優化控制,完成新能源消納、防逆流等控制需求。 提升各個站點的安全可靠、綠色經濟運行。

智慧能源管理平臺需要兼容266個站點的協調控制器接入,主要實現遠程集中監視和控制、能效分析、能耗及收益、數據統計、策略下發等。
協調控制器可以制定并自動執行防逆流、削峰填谷、新能源消納等控制策略,對內實現源、網、荷、儲一體化協同運行。

方案配置清單:

1、防逆流保護裝置:在并網柜增加防逆流保護裝置,通過監測公共連接點的逆流信息進行上送協調控制器或者斷開并網柜斷路器,實現微電網逆流保護;
2、電能質量在線監測裝置:監測微電網的電能質量指標,如電壓偏差、頻率偏差、諧波含量等,采取相應的控制措施,確保電能質量符合標準要求;
3、協調控制器:采集光伏、儲能、充電樁和市電的實時數據,實現多能源協同控制;完成微電網防逆流、新能源消納等策略,有效整合光伏、儲能和充電樁等資源,還能滿足防逆流要求,提升新能源消納能力,降低服務區用能成本及經濟運行;
4、智慧能源管理平臺:基于AI智能算法,配置多種運行策略,下發至協調控制器,實現光儲充的優化調度;并實現站點發電、用能、設備監測、展示與管理。
現場圖:

結論
新型電力系統下,加強光伏與儲能系統協調控制,是控制配電網電壓越限問題的有效方法。為此,可結合源網荷儲一體化控制理念,科學制訂新型電力系統建設方案,通過源網荷儲協調控制實現新型電力系統功率平衡。